• Professional As-Built Surveys and Drafting

    Trust is just one of the things we build from the ground up.

    ID Design Group is a professional, detailed-oriented team with more than 15 years in the drafting and design industry. We offer the utmost accuracy in our areas of expertise, including As-built floor plans, architectural drawings, mechanical drawings, 2D-3D design, Architectural Interior and exterior realistic Renderings, and more.

  • THE ID GUARANTEE

    1

    Innovative Approaches

    Cutting-edge technology, industry trend spotting, and a keen eye for design detail truly sets ID apart from the competitors.

    2

    Comprehensive Solutions

    The exclusive ID experience comes with unrivaled dedication and customization to your unique project specifications.

    3

    Guaranteed Satisfaction

    Meet every project milestone with increased efficiency, flexibility, and the peace of mind that comes with meticulous ID measurements.

  • PROJECT SPOTLIGHT

    30 East 23rd Street

    New York, NY

     

  • DESIGN SERVICES

    Section image

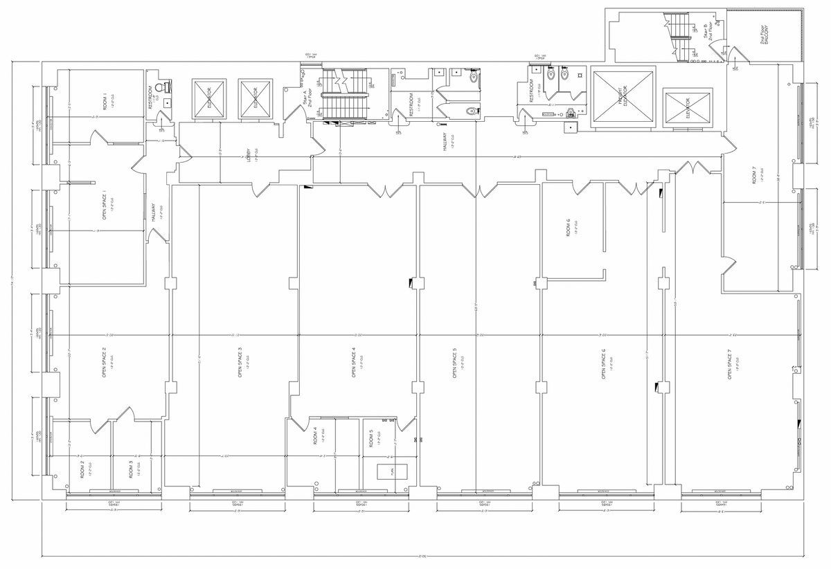
    Architectural As-Built Surveys

    Bring certainty to projects and portfolios with our class-leading building measurement services. Our as-built floor plans support a range of business applications including building verification, facility management, real estate property detailing, and space planning.

     

    Section image

    MATTERPORT SERVICES

    EVERYTHING STARTS WITH 3D CAPTURE

     

     

    Section image

    Mechanical Shop Drawings

    Whether you're hunting for unique pieces to offer a design client or something special for your very own home, we are ready to get creative and turn your dream into reality.

  • A CLOSER LOOK AT ELEVATION VIEWS

    Elevation drawings play a crucial role in the construction process.

    Section image

    Elevation Perspective

    Architectural plans and elevations can give a client a glimpse of what their future space is going to offer. Every stakeholder gets a deep understanding of the scale and textures, as well as the placement of the doors, windows, roofs and columns, due to its exhaustive clarity.

    Section image

    Exterior Elevation Finishes

    The detailed drawings take into consideration all the particulars for framing and exterior finishes. This includes finished floor heights, roofing and siding material, ceiling heights and roof slopes. These plans portray how every section of the structure is going to look once complete.

  • RECENT PROJECTS

    Section image

    Varick St, New York, NY

    10K SF Commercial As-Built Floor Plan

    Section image

    North 11th St, Brooklyn, NY

    Commercial As-Built Retail Space

    Section image

    Staten Island, NY

    Residential As-Built Elevation

  • REQUEST FREE QUOTE
    Send us your project details and we'll get back to you shortly.

  • ARCHITECTURAL PARTNERS

    Section image

    Thomas LaPorta Architect

    Section image

    Plan Architecture

    Section image

    Delform Studios